Encuentre una vivienda junto al agua

Cerca
× BETHUNE (62400)
Anadir esta seleccion

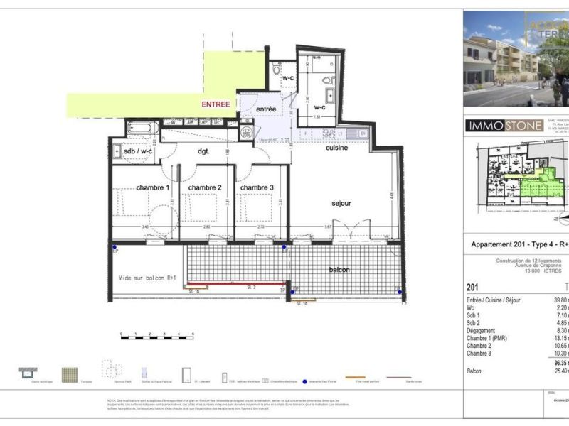
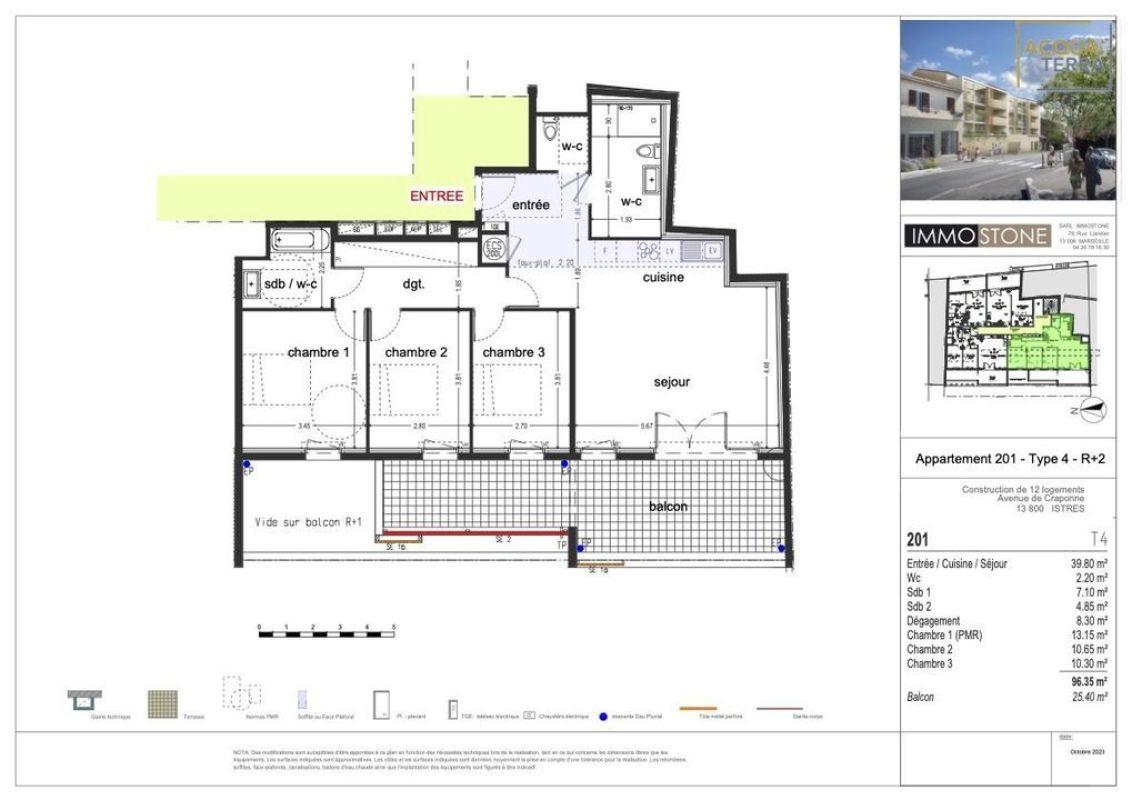
ISTRES (13800)
Apartamento Contemporáneo Prestigio Prestigio T4
Orilla del mar
395 000
Sala de estar96 m²
numero de habitaciones3 chambre(s)

Ãrbitro. : VA2031-FC2I83200
.

  • Terraza

Ubicación : ISTRES (13800)

Datos de contacto de la agencia

MAXI HOME

40 Boulevard Marcel Cachin 13500 MARTIGUES

Tél. : 04 42 40 40 45
Ver todos los anuncios

Contacta con la agencia

 
0
1
2