Notice: unserialize(): Error at offset 0 of 20 bytes in /var/www/es.1001rives.com/index.php on line 185

Encuentre una vivienda junto al agua

Cerca
 
Anadir esta seleccion
Ver más fotos

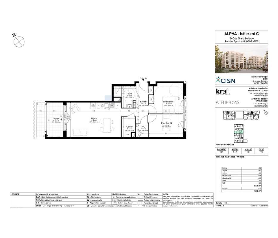
NANTES (44000)
Apartamento T3
Campo
194 100
Sala de estar65 m²
numero de habitaciones2 chambre(s)

Ãrbitro. : p129l3186
.

Ubicación : NANTES (44000)

Datos de contacto de la agencia

CISN ATLANTIQUE SAINT NAZAIRE

30 avenue Leon Blum 44600 SAINT NAZAIRE

Tél. : 02 40 22 98 76
Ver todos los anuncios

Contacta con la agencia

 
0
1
2
3
4

Todos nuestros anuncios inmobiliarios à NANTES