Notice: unserialize(): Error at offset 0 of 76 bytes in /var/www/es.1001rives.com/index.php on line 185

Encuentre una vivienda junto al agua

Cerca
 
Anadir esta seleccion
Ver más fotos

BIDART (64210)
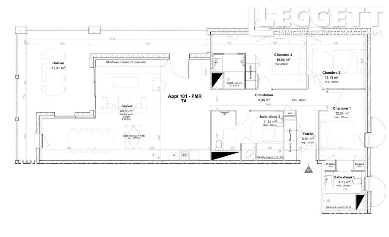
Apartamento Prestigio Prestigio T4
Orilla del mar
1 125 000
Sala de estar119 m²
numero de habitaciones3 chambre(s)

Ãrbitro. : UF-A42113KRK64
.

Ubicación : BIDART (64210)

Datos de contacto de la agencia

LEGGETT IMMOBILIER

42 Route de Ribérac 24340 ROCHEBEAUCOURT ET ARGEN

Tél. : 05 53 56 62 54
Ver todos los anuncios

Contacta con la agencia

 
0
1
2
3
4

Todos nuestros anuncios inmobiliarios à BIDART