Encuentre una vivienda junto al agua

Cerca
 
Anadir esta seleccion
Se alquila apartamento de 2 habitaciones, 67 m², junto al mar, Fréjus
Se alquila apartamento de 2 habitaciones, 67 m², junto al mar, Fréjus
Se alquila apartamento de 2 habitaciones, 67 m², junto al mar, Fréjus
Ver más fotos

FREJUS (83600)
Apartamento T3
Orilla del mar
246 000
Sala de estar67 m²
numero de habitaciones2 chambre(s)

Ãrbitro. : 199746
apartamento de 2 habitaciones 67 m2 frente al mar frejus (83600).

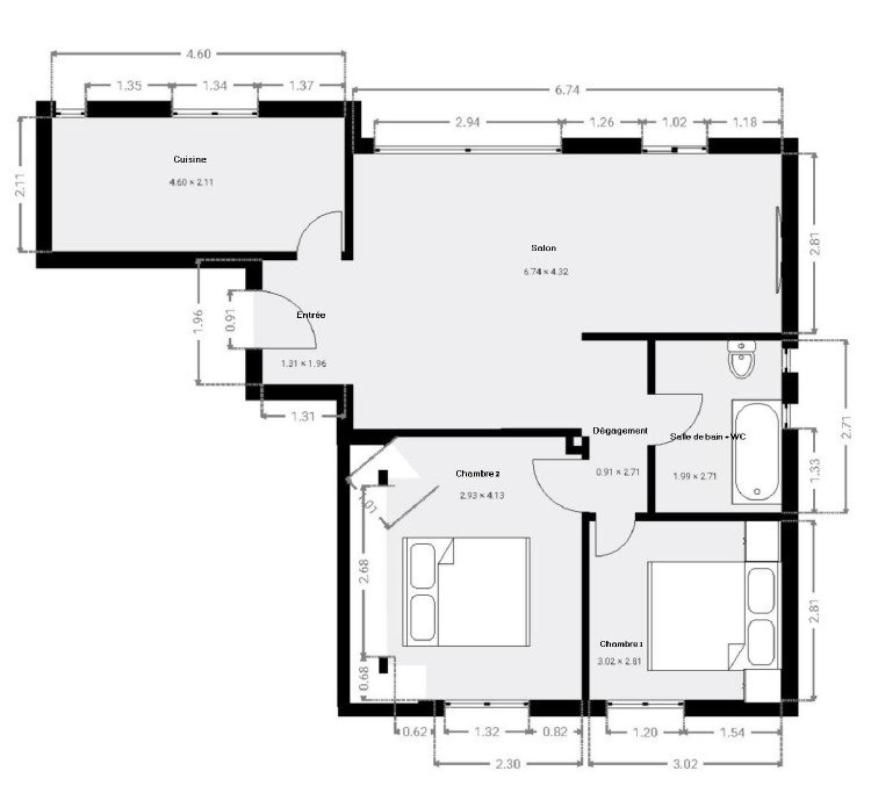
Ubicado en la segunda planta (sin ascensor) de un edificio pequeño, seguro e íntimo, este apartamento de dos dormitorios de 67 m², totalmente renovado, combina comodidad con una ubicación estratégica cerca de colegios, comercios y transporte público. Consta de recibidor con trastero, cocina independiente totalmente equipada, un luminoso salón con acceso a un balcón de 5 m², dos cómodos dormitorios de 9 y 12 m² y un baño con WC. Excelente calificación energética: B. Fácil aparcamiento gracias a la zona de aparcamiento comunitario segura. Persianas motorizadas, aire acondicionado reversible en todas las estancias y puerta blindada. Gastos de comunidad razonables. Techo y zonas comunes renovados en los últimos tres años. ¡Contáctame para programar una visita! La propiedad consta de una unidad y se encuentra en un condominio de 12 unidades (la cuota media anual de la comunidad de propietarios es de 1248 ? y la comunidad de propietarios no está sujeta a ningún procedimiento según lo definido en el artículo L. 721-1 del Código de la Construcción y la Vivienda francés). La información sobre los riesgos a los que está expuesta esta propiedad está disponible en el sitio web de Géorisques: www.georisques.gouv.fr. Precio de venta: 261.000 ?. Los honorarios de la agencia corren a cargo del vendedor. Contacte con su asesor de megAgence: Samanta Rancagno, Tel.: +33 7 83 38 28 50, Correo electrónico: samanta.rancagno@megagence.com - Empresa individual - Agente de ventas registrado en la RSAC de Fréjus con el número 921 526 364
  • Balcón
  • Aire acondicionado
  • Estacionamiento
  • Ascensor

Ubicación : FREJUS (83600)

Datos de contacto de la agencia

MEGAGENCE

118 ROUTE D'ESPAGNE Immeuble B le phénix 31100 TOULOUSE

Tél. : 05 32 09 32 18
Ver todos los anuncios

Contacta con la agencia

 
0
1
2
3
4
5
6
7

Todos nuestros anuncios inmobiliarios à FREJUS